Kooperation Industriestrasse
Überraschen Sie uns mit Ihrer Idee
Bereit, mit Ihrer Geschäftsidee Teil einer lebendigen und lebenswerten Industriestrasse zu werden? Wir suchen für unsere Gewerbeflächen innovative Ideen.

Wirken, vernetzen, teilen, produzieren oder verkaufen: Die rund 3000 m² Gewerbefläche im Erdgeschoss der Siedlung Kooperation Industriestrasse sind ein wichtiger Bestandteil der gesamten Siedlung. Sie ergänzen das Wohnangebot und tragen zu einer lebendigen und vielfältigen Nutzung des Areals bei. Für die abl-Gewerbelokale am Geissensteinring suchen wir per sofort kreative und überraschende Gewerbekonzepte, neue, innovative Ladenideen oder kleine Labels.
Gut gemischt gewinnt
Verschiedene Lokale unterschiedlicher Grössen sind im Angebot. Die Räume sind flexibel nutzbar und eignen sich als Ateliers, Produktionsstätten, Werkstätten, Läden oder für Dienstleistungsangebote. Den Ideen sind keine Grenzen gesetzt: Schmuckatelier, Yogastudio, Siedlungsladen, Reparatur-Werkstatt, Gesundheitspraxis, Instrumentenbauer*in, Gewerbegemeinschaft, Nähatelier oder Tattoostudio. Gefragt sind Geschäftsideen, die vom Netzwerk aus unterschiedlichen Gewerbetreibenden und den rund 400 Bewohnenden, die sich an der Industriestrasse niederlassen werden, profitieren wollen.
Gesamte Fläche oder nur Teilflächen
Insgesamt vermietet die abl rund 750 m², verteilt auf vier Gebäude. Ein Gewerbehaus ist bereits der Stadt Luzern vermietet. Dort entsteht ein städtischer Kindergarten. Bei allen Räumen sind im Grundausbau ein rollstuhlgerechtes WC, eine Teeküche und ein Unterlagsboden vorgesehen.
Ein Quartier entwickelt sich
Das Projekt Kooperation Industriestrasse markiert nur den Anfang einer Weiterentwicklung des Quartiers Unterlachen. Aktuell wertet die Stadt Luzern bis 2028 das Strassengebiet umfassend auf. Die Industriestrasse wird mit schattenspendenden Bäumen begrünt und für den Durchgangsverkehr gesperrt. Zudem wird der Allmendli-Bach, der im Moment unterirdisch verläuft, teilweise offengelegt. Trottoirs und Velostreifen werden verbreitert, Begegnungszonen geschaffen. Mit dem Projekt EWL-Areal entstehen bis 2032 weitere Gewerbeflächen und Begegnungsorte im Erdgeschoss – und 92 gemeinnützige abl-Wohnungen.
Diese Mietflächen sind noch im Angebot

Wohn- und GewerbehausIndustriestrasse 17
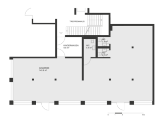
Im Wohnhaus an der Ecke Industriestrasse-Geissensteinring steht im Erdgeschoss eine Nutzfläche von insgesamt 267 m² zur Verfügung. Diese Fläche ist als Ganzes oder auf Anfrage als Teilfläche mietbar.


Gewerbehaus Geissensteinring 15
Zwischen den Wohnhäusern befindet sich ein kleines, zweistöckiges Gewerbehaus mit einer gesamten Nutzfläche von 178 m². Die beiden Geschosse sind mit einer Galerie verbunden. Die Fläche des Erdgeschosses beträgt 121 m², jene der Galerie im 1. Obergeschoss 57 m².


Wohn- und GewerbehausGeissensteinring 17
Im Erdgeschoss des Wohnhauses an der Geissensteinstrasse 17 stehen zwei Gewerbeflächen von 163 m² beziehungsweise 154.4 m² Nutzfläche im Angebot. Diese beiden Flächen sind kombiniertals Gesamtes oder einzeln mietbar.
Melden Sie sich bei uns!
Auf dem Areal an der Industriestrasse schaffen fünf Baugenossenschaften gemeinnützigen Wohn-, Arbeits- und Kulturraum mit viel Raum für Mitwirkung. Die abl realisiert vier unterschiedliche Gebäude mit 51 Wohnungen und 900 m² Gewerbe- und Dienstleistungsflächen.
Sind Sie an einer der Gewerbeflächeninteressiert?
Melden Sie sich bei Nathalie Baumeler, Immobilienbewirtschafterin, n.baumeler (at) abl.ch.
Sind Sie an einer Wohnung interessiert?
Die Erstvermietung der 51 abl-Wohnungen startet am 27. Juni 2026. Melden Sie sich bei unserem Newsletter an und bleiben Sie auf dem Laufenden: abl.ch/KIL



























